Homeowner Needs
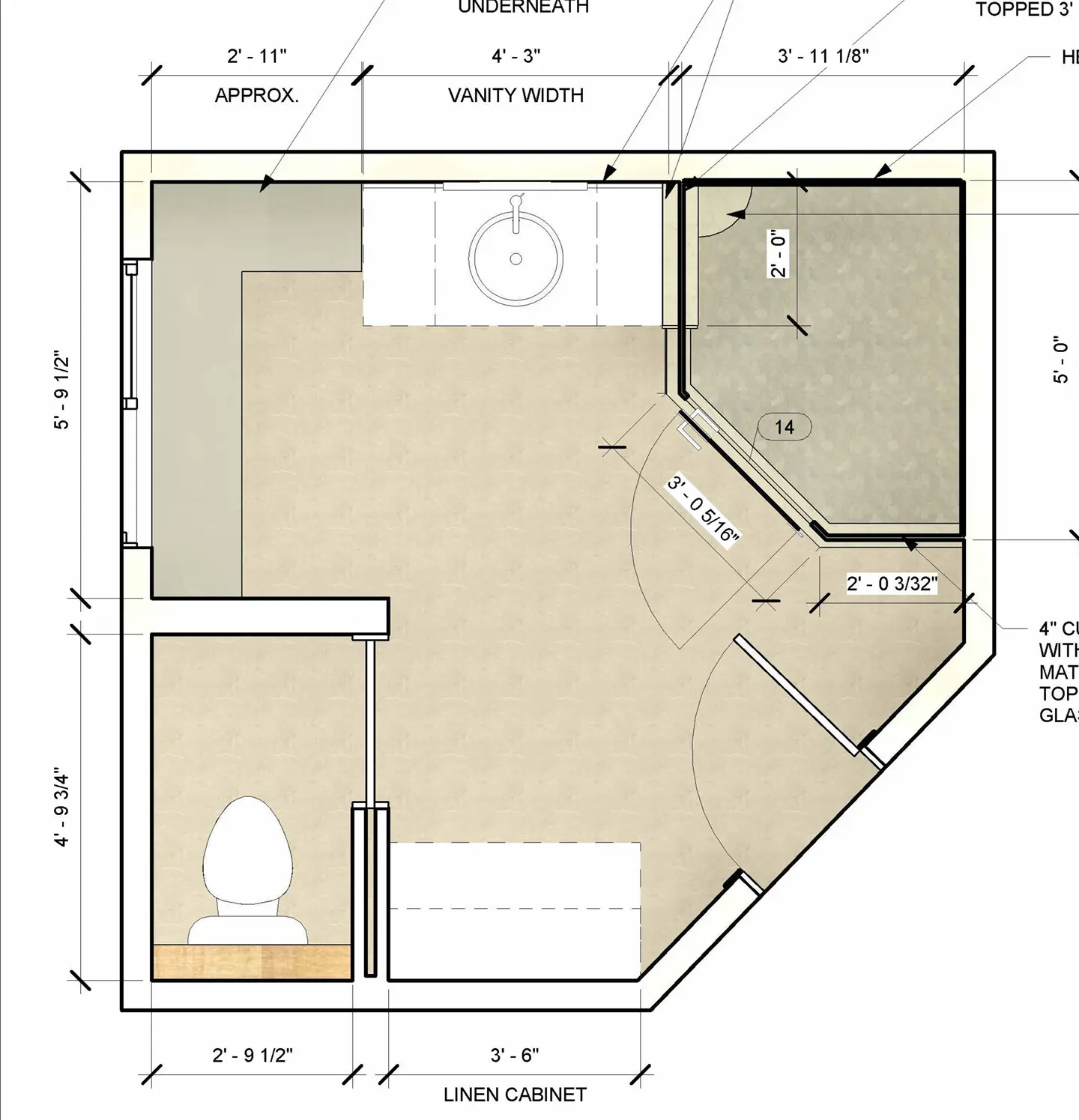
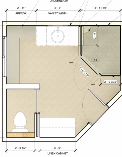
Frustrated by the chopped-up layout of her primary bathroom, our client was more than ready to reimagine her space. With two separate vanities, an oversized (and rarely used) corner bathtub, and a shower that could generously be described as “petite,” the room felt disjointed and dated. While she appreciated the dedicated water closet and ample storage, she craved a fresh, cohesive design worthy of this personal retreat.
Remodeling Solution
Since the bathtub was taking up valuable square footage without really earning its keep—and the dual vanities felt redundant – we followed our client’s lead and expressed desires and developed a smarter, more intentional floor plan. Out went the corner tub. A single vanity was redesigned and relocated to a more functional location. The shower expanded into something truly luxurious. The toilet stayed put (because not everything needs to move to make magic happen). A custom, floor-to-ceiling linen cabinet with counter space replaced the second vanity, and a bespoke upholstered storage bench added comfort, character, and the unmistakable feel of a fully custom primary suite.
Result
A beautifully orchestrated collaboration between designer and homeowner, expressed in every corner.
Thoughtful details—like the distinctive arched mirror and the interplay of tile and quartz—quietly celebrate the homeowner’s refined taste. Earthy tones, inventive tile selections, and a mix of stained and painted custom cabinetry prove she wasn’t afraid to venture beyond the mainstream.
What We Love
The shower alone is a masterclass in understated brilliance. The Skalini Line Artistic Stone Etched Chevron Wooden Grey Marble tile (yes, in an actual chevron pattern) graces the plumbing wall, complemented by Emser Venetian flat pebble Silver Mosaic underfoot. Marestar quartz—also featured on the vanity and linen cabinet—ties it all together in the shampoo niche, corner bench, and a top the shower threshold.
Our Favorite Detail
Both the vanity and linen cabinet feature soft under-cabinet toe-kick lighting that adds gentle illumination and a touch of ambiance. The Surface Art Daima Way 12×24 floor tile ties the space together beautifully, pairing effortlessly with the surrounding finishes. And beneath it all is the real luxury: radiant heated flooring that delivers instant comfort and easily earns a spot on our “must-have” list for any primary bathroom retreat.
Before & After


Project Details
Year Completed: 2025
Location: Snohomish, WA
